Objekat se nalazi na području Gradske Opštine Medijana. Blok okružuju ulica Dušana Trivunca na istoku i jugu, Osnovna škola "Ćele Kula" na severu i ulica Vase Albanca na zapadu
Ulaz u prizemlju je sa zapadne strane. U okviru prizemlja objekta predviđen je vetrobran glavnog ulaza, hodnik, stepenište, lift i prostorija za održavanje higijene zgrade. Na ulazu, podestima i stepeništu podovi su od keramičkih pločica
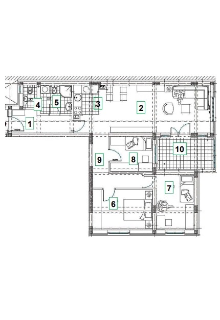
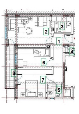
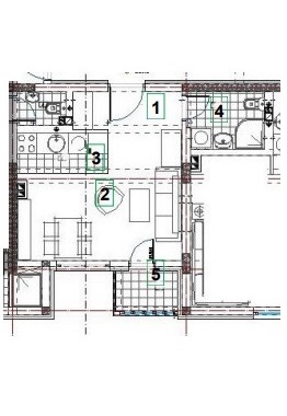
Objekat poseduje prizemlje i 4 sprata. Visina svakog sprata je 2,90m. U objektu su 17 stambenih jedinica
15+1
Kontaktna fasada
Prirodni kamen
Natur beton
Bavalit
U kuhinjama pod je od keramičkih pločica prve klase d=0,8cm, ispod koga je tvrdopresovani ekstrudirani polistiren d=2-3cm. Podovi na balkonima i lođama takođe su od keramičkih pločica
U svim ostalim prostorijama je pod od parketa prve klase d=2,2cm sa tvrdopresovanim ekstrudirani polistirenom d=2-3cm
Unutrašnji zidovi i plafoni malterisani su produžnim malterom. U svim hodnicima, sobama, kuhinjama i trpezarijama zidovi se gletuju i boje u belo
Za stolariju korišćen petekomorni PVC profili u antracit boji
Plafoni u kupatilima oblažu se gips karton pločama na potkonstrukciji. Zidovi u kupatilima oblažu se keramičkim pločicama prve klase do plafona, a u radnom delu kuhinje u visini do 1,60cm od poda
Obrenovićeva 46, II sprat, lamela C, lokal 60, Niš, Srbija
assgradnja@hotmail.com
+381 65 909 20 10
+4176 441 38 49 (switzerland)
Za sve informacije o projektima i kupovini stanova, parking mestima i lokalima, za poslovnu saradnju, kao i ponudu lokacije za gradnju, pozovite, pišite ili posetite našu kancelariju
© STOJKOVIĆ GRADNJA AS DOO. Sva prava zadržana.